Mirai Patriani

Área Interna: Infraestrutura para ar condicionado, aquecedor a gás, varanda gourmet churrasqueira a carvão e chapa dupla, bancadas dos banheiros das suítes serão com cuba de louça embutida no granito polido, lavabo amplo e muito bem posicionado, guarda corpo das varandas em alvenaria e vidro, piso da varanda gourmet nivelado com sala, porta com Passa Pets, misturador de águas quente nas torneiras dos banheiros e da cozinha, fechadura biométrica e com senha na porta da entrada, tomadas USB nas suítes e sala, gerador de energia mantendo um ponto de luz na sala, um ponto na cozinha e a tomada na geladeira em caso de falta de energia. Área Comum: 22 vagas para motos nos subsolo, 9 vagas para visitantes no térreo, sendo 1 de PcD, espaço Uber (Criamos um local para as pessoas aguardarem o transporte com segurança e conforto, Ponto de recarga para carros elétricos, Car wash, Delivery Room, piscina será climatizada/ aquecida e terá banco de transferência para atender PcD, Casa de Campo, Churrasqueira externa, Salão de Festa, forna pizza, geladeira, chopeira e bancada em granito, beauty carre, Coworking, Pet Place, Dog Wash,

Valor a partir de R$ 594.300,00
Rua Antonio Perez Hernandes, 80

Parque Campolim, Sorocaba
18048115

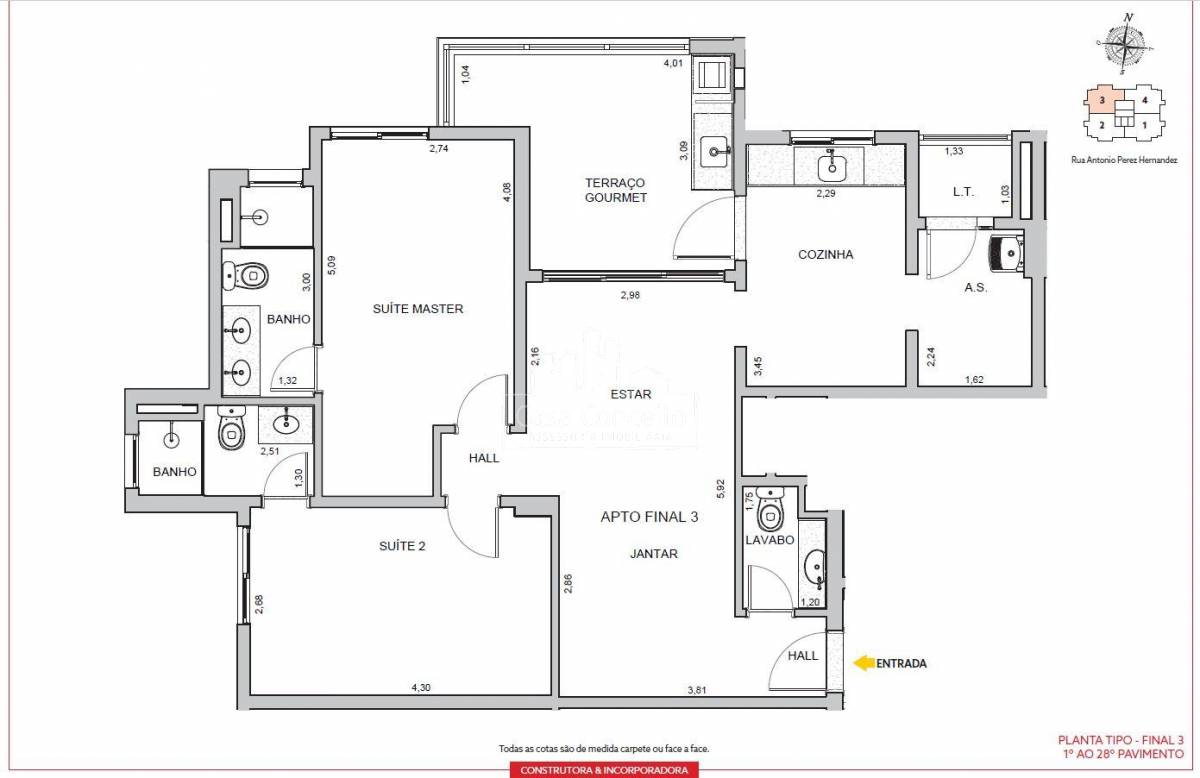
92m²
02 suítes

Características do Empreendimento

- Bicicletario

- Brinquedoteca

- Churrasqueira

- Gourmet

- Forno Pizza Pão

- Guarita Segurança

- Piscina

- Piscina Climatizada

- Piscina Infantil

- Playground

- Portal Eletronico

- Recepcão 24h

- Quadra Gramada

- Quadra Poliesportiva

- Sala Fitness

- Salão Festas

- Salão Jogos

- Sauna Seca

- Seguranca Interna

- Sistema Incendio

- Sistema Seguranca

- Solarium

- Wifi

- Acesso Deficientes

- Agua

- Aquecimento Eletrico

- Ar Condicionado

- Area Terreno

- Elevador

- Esgoto

- Estrada Asfaltada

- Galeria Aguas Pluviais

- Iluminação Publica

- Instalacoes Internet

- Agua Individual

- Rua Asfaltada

Localização do Empreendimento

Entre em contato